Clasic

Clasic

Robust dar in același timp, linear cu un design plăcut se adaptează perfect fiecărei situații de construcție, aducând un plus valoare, prin izolare termica si fonica, siguranța antiefracție si nu in ultimul rând un puternic impact vizual asupra locuinței tale.

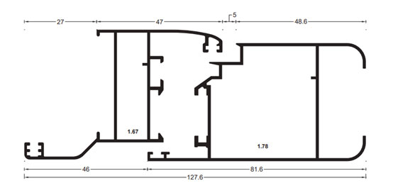
Sistemul poate fi realizat cu toc de renovare sau classic, cu lățimea acestuia de 48 mm, lățimea cercevelei de 44 mm realizabil cu sistem de lamele orientabile sau fixe si cu doaga tip lambriu poziționate fie vertical, fie orizontal.

Sistem un canat

Sistem doua canate

Sectiuni Profile

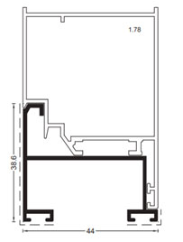
Sistem oblon un canat batant – parte superioara

Sistem oblon un canat batant – parte superioara

Sistem oblon un canat batant – parte superioara

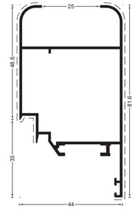
Sistem oblon un canat batant – parte inferioara

Toc mic

Toc mare

Toc renovare

Lamela capăt

Lamela orientabila

Lamela fixa

Lambriu sau doaga

Prag

Profil compensator lamela

tija cremon

Cercevea

Inversor(stulp)

Traversa

Traversa mare(bandou)

Compensator traversa

Compensator inchidere inferioara

Paletar culori

Galerie Media